Планировка и зонирование
Чаще всего, комната имеет форму буквы Г, благодаря тому, что в прихожей сразу расположено помещение санузла. Отталкиваясь от количества окон можно заняться рассредоточением зон. Хозяин должен определиться с такими вопросами как:
- должно ли быть окно в зоне кухни, зоне отдыха и сна, гостиной;
- будет ли комната иметь спальную зону;
- какой интерьер для него актуален;
- будет ли квартира иметь четкие границы зон.
При наличии двух окон, одно принято иметь в кухне, а второе зависит от взгляда жильцов. Расположение гостиной сразу после небольшой прихожей обусловлено тем, что спальню лучше удалить от входа, но в этом случае, гостиная не будет иметь окна. Отделение спальни стационарными легкими перегородками позволяет перенести гостиную ближе к кухне, что кажется более логичным.
Кухня
Как бы не хотелось отделить эту территорию, но возводить стены, значит лишаться воздушного и гармоничного пространства.
Можно просто отделить зону кухни границей отделочных материалов, правильно подобрав оттенки и структуру материала. Интерьер только выиграет.
Пол кухни, отделанный плиткой может быть чуть выше, чем зона гостиной с ламинатом – такое возвышение даст понять, что территория имеет границы.
Светлые стены, либо комбинированные цвета отделки должны сочетаться с цветовой гаммой квартиры. Мебель – функционал и минимализм, а бытовая техника должна нести максимальный комфорт и удобство для жильцов. Эргономичность и простота линий, минимализм и качественные материалы – залог успеха при создания
Иногда оформление кухни в студии упрощается планировкой комнаты, например, если она Г-образная. Рекомендуется установить легкую перегородку между двумя функциональными зонами из стекла, прозрачного пластика, или обычного стеллажа.
Если комната квадратная, обеденную зону можно обозначить другими способами. Например, рекомендуется разместить стол со стульями или барную стойку так, чтобы она отделяла гостиную от кухни. Подобной стойкой может служить столешница П-образного гарнитура — это более приемлемый вариант для маленькой комнаты. Над столешницей можно разместить большой подвесной светильник. Он также будет зонировать пространство, освещая обеденный стол.
Цветовое оформление кухонного пространства в квартире-студии может выполнять одну из двух функций:
- Выделять его на фоне общей гостиной. Акцентируют кухню: выбирают контрастный по отношению к жилой комнате, цвет стен, фартука, мебели. Например, черные матовые фасады, стеклянный фартук такого же цвета, визуально отдаляют кухню в однокомнатной квартире. Стена словно отодвигается.
- Скрывать, чтобы пространство получилось единым (пример “скрытой” кухни — на фото). При этом мебельные фасады, облицовка фартука по оттенку должны быть приближены к цветовому оформлению гостиной. Интерьер получается единым, комната визуально становится просторнее, особенно при использовании светлых оттенков. Ненавязчиво выделить кухонное пространство можно с помощью светодиодной подсветки фасадов.
Спальня
Зона отдыха и сна необходима, если квартира имеет двух жильцов, и ее в любом случае нужно отделить перегородкой. Это может быть как стационарная легкая, так и передвижная, но небольшая комната должна быть обособлена. Ширма, стена – купе из матового стекла, текстиль.
Выбор в сторону того или иного материала обусловлен лишь желанием хозяев
Важно обеспечить полноценный приток воздуха, или установить кондиционер
Рабочая зона
Если есть возможность обустроить кабинет на утепленной лоджии, квартира не потеряет квадратных метров. Функциональный стол, удобное кресло, необходимые стеллажи для хранения документов – все это легко вмещается на лоджии. Если такой возможности нет, можно воспользоваться мебелью – конструктором, которая в полной мере функциональна для рабочих моментов, а с приходом гостей складывается. Рабочая зона на фото выделена вместе с зоной спальни на возвышении. Это небольшой домашний офис для одного человека. Благодаря легкой надстройке хозяева получат несколько лишних квадратных метров.
Оформление ванной
Как правило, это помещение 4 – 6 кв.м. Стоит использовать его максимально функционально. Современные стили эргономичны, и позволяют заполнить пространство целесообразно. Душевые кабинки выполненные в стекле дадут ощущение воздушности помещения, светлые оттенки плитки, или плавные переходы цветов поднимут потолок. Ванная комната, как и вся квартира студия, должна быть максимально светлой. Освещение и эргономичная мебель для ванной создадут непревзойденный антураж. Светлые ванные, как на фото, увеличат внутреннее пространство.
Дизайн квартиры-студии различной площади
Студия 20-30 кв. м.
Дизайну и интерьеру маленькой студии мы уделим особое внимание, так как с ним справиться сложновато. В такой квартире непросто развернуться, ведь в эту площадь входит не только кухня, прихожая и комната, но и санузел. С него и начнем работу
С него и начнем работу
В такой квартире непросто развернуться, ведь в эту площадь входит не только кухня, прихожая и комната, но и санузел. С него и начнем работу.
Дизайн ванной комнаты и туалета
«Дизайн», конечно, сильно сказано для этого закутка, но уж что имеем…
Для начала сделаем перегородки (наилучший материал вам посоветуют мастера-отделочники, они же это и выполнят).
Изолированный санузел делать бессмысленно, поэтому мы поставим туда унитаз, малюсенькую раковину и компактную душевую кабину. Стены можно отделать декоративной штукатуркой, чтобы не мучиться с плиткой и не сокращать и без того крошечное пространство. На пол придется все-таки положить кафель, а потолок можно просто покрасить.
Смотрите фото дизайна ванной комнаты.
Дизайн комнаты и кухни
Дальше обустраиваем оставшееся пространство. Если окно одно, то мы условно делим его пополам: одна часть для кухни, а вторая для всего остального. Как мы уже говорили, нам нужно экономить на всем. Избавляемся от всего ненужного, чтобы рабочая зона занимала совсем мало места.
Стол выбираем складной, за которым может сидеть один-два человека, а при необходимости больше. Или же оборудуем барную стойку, где можно ежедневно есть и угощать гостей.
В жилой части поставим раскладной диванчик и маленькое кресло-пуф. Телевизор можно повесить на стену. Главный же вопрос заключается в размещении вещей. Их приходится иметь много, так как лето у нас не круглый год. Лучший вариант для этого – большой угловой шкаф рядом с входом. Именно в такие шкафы входит очень многое. Кстати, диван нужно искать с выдвижными ящиками, чтобы складывать туда одеяла, подушки, постельное белье и другие вещи.
Какой мы выберем дизайн? Чтобы не перегружать пространство, остановимся на стиле лофт или хай-тек. Допустим, мы выбрали лофт.
Стены
Если дом кирпичный, можно оставить небольшой угол без штукатурки. Это будет выглядеть вызывающе и стильно. Остальное пространство стены отделываем белым или бежевым цветом.
Окно
Для создания единого стиля лучше отказаться от пластика и поставить деревянное окно. Шторы будут лишними, а так как пустые окна вечером будут выглядеть неуютно, повесим деревянные жалюзи.
Мебель
Диван должен быть большой, в винтажном стиле, немного обшарпанный. Если мы обставляем квартиру старой мебелью, это будет идеально. Тогда у нас получится самый настоящий лофт! Он допускает разноплановую мебель, как будто собранную из разных квартир.
Свет
Одинокий плафон на цепочке – это то, что нужно для такой квартиры. Для лучшего освещения используем старый светильник в прихожей и дополнительную лампу на кухне.
В ролике показаны примеры дизайна маленькой квартиры-студии
Дизайн квартиры-студии 40-50 кв м
На такой площади уже не так тесно. Вполне реально оборудовать хорошую кухню и жилую комнату. В этом случае можно разделить квартиру на части с помощью перегородки из гипсокартона, и получить коридор, кухню и комнату.
Если все же нам хочется сохранить свободное пространство, оставим все как есть, разграничив квартиру элементами дизайна: разноуровневым потолком и полом, цветовой гаммой и освещением.
В просторной студии можно применить стиль прованс, ар-деко и фьюжн. Они дают возможность экспериментировать с цветом и рисунком обоев, мебелью и различным декором. Главное, что пространство все это позволяет реализовать.
Планирование пространства
Прежде чем заниматься дизайном и оформлением, расставь все приоритеты:
— Важный вопрос: была ли студия таковой изначально, или это обычная измененная однокомнатная квартира. Это влияет на площадь пространства, его конфигурацию, расположение окон.
— Проектируй комнату с учетом ее формы. В обычных прямоугольных и квадратных студиях интересно смотрятся классические интерьеры. А в новых нестандартных планировках с округлыми формами и скошенными углами интереснее играют современные тренды.
— Обязательно учитывай, сколько человек будет жить в квартире, ведь потребности одного, пары или семьи с ребенком сильно отличаются. При наличии малыша – в первую очередь ориентируйся на безопасность и практичность оформления.
— В зависимости от образа жизни меняются потребности. Кому-то нужна гостиная зона, кому-то – кабинет, мастерская или небольшая гардеробная в углу. Все это напрямую влияет на дизайн квартиры.


7 советов по организации интерьера
В работе над дизайн-проектом полезно прислушаться к мнению профессиональных дизайнеров. В их арсенале немало проверенных, упрощающих работу наработок. Следующие советы напоминают о значимых вещах:
Важно как можно раньше определиться с материалом пола. Однородное покрытие станет объединяющим элементом интерьера. Пол из разных материалов поможет выделить зоны: плитка на кухне, ламинат в зоне отдыха
В последнем случае придётся точно определять размер покрытий и длину стыков.
О вентиляции часто забывают, хотя качественная вытяжка в кухонной зоне – критично необходимая вещь.
Чтобы комната-студия не выглядела захламлённой, потребуется как можно больше мест для хранения. Не игнорируйте пространство над дверью и вокруг окна, задействуйте углы и подоконник.
Пол из разных материалов поможет выделить зоны: плитка на кухне, ламинат в зоне отдыха. В последнем случае придётся точно определять размер покрытий и длину стыков.
О вентиляции часто забывают, хотя качественная вытяжка в кухонной зоне – критично необходимая вещь.
Чтобы комната-студия не выглядела захламлённой, потребуется как можно больше мест для хранения. Не игнорируйте пространство над дверью и вокруг окна, задействуйте углы и подоконник.
Поместится всеИсточник hzcdn.com
- Барная стойка – непривычное, но практичное решение для открытого пространства, с массой возможностей для использования.
- Мебель желательно делать на заказ. Выйдет дороже, но зато комната-студия получится максимально удобной для жизни, что, в конечном итоге, важнее.
- Даже если кухонная зона небольшая, на ней придётся выкроить место для бытовой техники. Частичным решением проблемы станет приобретение предметов с совмещённым функционалом: стиральной машины с сушкой, мультиварки, духовки с функцией СВЧ.
- Стиральную машину можно перенести в ванную комнату, при необходимости заменив ванну душевой кабиной.
Дизайн спальной и гостиной зоныИсточник pianetacasasrl.it
Об освещении
Для хорошего освещения комнаты, рекомендуется заменить шторы на жалюзи. Не переусердствуйте и с декоративной отделкой, пусть она будет попроще. Аксессуары для стиля минимализм лучше всего будут выглядеть из натуральных материалов, такие, как стекло или дерево.
От всей отделки и от предметов мебели требуется одно: визуально расширять помещение.



Светильники в стиле минимализм не имеют каких-то вычурных форм, они самые обычные, такие, которые не будут бросаться в глаза и исправно справляться со своей функцией.


Выделение зоны с использованием цвета
Если грандиозная перепланировка не по карману, то отделить зоны можно зрительно, обыграв их разными цветами. Например, потолок сделать немного светлее, чем стены – проверенный вариант для визуального расширения помещения.




Способы визуального расширения границ микроквартиры
Самый популярный и зарекомендовавший себя способ расширения пространства – зеркальные покрытия. Шкаф-купе с зеркальными дверцами, зеркальная стена стали классическими дизайнерскими решениями, благодаря которым помещение выглядит просторным
Важно только не переборщить, чередуя их матовыми поверхностями, иначе зеркала будут только напрягать
Зеркальная стена, например, умножит пространство, если будет расположена напротив окна в светлой квартире. Такое размещение создаст иллюзию второго окна, что усилит естественное освещение и придаст помещению визуальную легкость.

Зеркальные участки стен будут уместны в прихожей, за спинками кресел, отлично подойдут для применения в комнатах с минимальным набором мебели.

Любые отражающие поверхности усиливают визуальный эффект: блестящие откосы окна, глянцевый потолок, покрашенные яркой краской радиаторы.

В сочетании с зеркальными и блестящими поверхностями добавят объёма фотообои с контрастной перспективой.

Другим важнейшим фактором, влияющим на пространственное восприятие маленькой квартиры, является цвет
Здесь важно грамотно выбрать и применить основной цвет и его сочетания с другими. Как правило, основным используется белый, который дополняется яркими деталями разных оттенков.

Визуальную легкость маленькой площади придаст световое оформление. В квартирке большая люстра не нужна, она только съест пространство. Эффективнее использовать для различных функциональных сегментов декоративный свет, скрытую подсветку, световые композиции, которые расширят пространство.

Обстановка функциональных зон в интерьере квартиры-студии 25 кв.м.
После того, как вы выделите все перечисленные выше функциональные зоны, потребуется заняться грамотным подбором мебели и организацией освещения.
Этому этапу мы посвятим целый раздел статьи, так как он является одним из самых важных в разработке дизайна жилища.
Самое небольшое пространство лучше всего отводить под спальную зону, которая в обязательном порядке изолируется от гостиной с помощью перегородок или ширмы.
Здесь должно располагаться все необходимое для комфортного отдыха – двуспальная (или односпальная) кровать, прикроватные тумбочки, туалетный столик с зеркалом и комод для хранения постельных принадлежностей и одежды.
Чтобы сэкономить пространство, вы можете купить кровать со специальными ящиками и избавиться от старого комода.
Напротив, больше всего места многие отводят под гостиную.
Это не удивительно, так как именно в этом помещении вы сможете смотреть телевизор или собираться у камина для семейных либо дружеских посиделок.
В подавляющем большинстве случаев гостиная дополнительно разбивается на две функциональные зоны:
Диванная группа. Именно она концентрируется вокруг центрального элемента, в роли которого используется телевизор или камин. В зависимости от конфигурации конкретного помещения можно использовать либо традиционный прямой, либо большой угловой диван. Дополняют группу удобные мягкие кресла или пуфы.
Столовая зона
Если она выносится в гостиную, то важно знать одно правило – данное пространство должно располагаться на некотором удалении от диванной группы. Идеальный вариант – оставить между ними расстояние в 1-1,5 метра для удобного прохода
При желании столовую можно изолировать от гостиной с помощью мобильной или стационарной перегородки
При желании столовую можно изолировать от гостиной с помощью мобильной или стационарной перегородки.
Оформление кухни в квартире-студии
Грамотный подход к дизайну рабочей зоны, предназначенной для приготовления пищи, дает возможность обеспечить максимальный комфорт проживания в квартире студии.
Лучше всего для этой цели обратиться к профессионалам, которые учтут все особенности вашего жилища, подготовят дизайн проект с учетом описанных ниже правил:
В рабочей зоне кухни обязательно следует использовать вытяжку большой мощности, которая избавит вас от посторонних запахов в гостиной или спальне. Это устройство может быть встроенным или расположенным отдельно над газовой либо электрической плитой.
Для максимальной безопасности лучше использовать электрические духовые шкафы или варочные панели. Все дело в том, что газовую плиту по действующим правилам вообще нельзя размещать в жилом помещении. Поэтому при объединении кухни с гостиной вам придется устанавливать изолирующие глухие перегородки или изделия из высокопрочного стекла.
Уделите максимум внимания кухонному фартуку, который будет обеспечивать защиту стены и отделочных материалов от влаги и жира. Идеальные вариант – выбирать изделия, выполняемые из стекла или керамической плитки, так как они долговечны и чрезвычайно надежны в эксплуатации.
Вместо громоздкой мебели на кухне квартиры-студии лучше использовать трансформирующиеся, складные или встроенные конструкции. То же самое относится и к бытовой технике – холодильнику, посудомоечной и стиральной (если нет места в ванной комнате) машинам. Для экономии свободного пространства можно заказать в специализированных компаниях изготовление систем хранения по индивидуальному заказу точно по предоставленным размерам.
Идеально, если в квартире студии есть балкон или лоджия. Эти конструкции после соответствующего обустройства, включающего в себя остекление, утепление и отделку, можно использовать в качестве дополнительного кухонного пространства для размещения бытовой техники или систем хранения. Кроме того, на балкон можно вынести электрическую плиту и духовой шкаф.
Лоджия и балкон помогут вам расширить не только кухню, но и гостиную.
Мало того, на свободном пространстве таких конструкций вполне можно разместить спальню или небольшую детскую комнату, рабочий кабинет или библиотеку, эстетичный зимний сад.
Если вы хотите создать по-настоящему стильный дизайн, необходимо уделить максимум внимания декоративным элементам.
Они не только украсят помещение, но и помогут связать несколько отдельных зон в единое стилевое решение.
К примеру, цвета кухонного фартука могут частично повторяться в диванных подушках гостиной или в мебели, установленной в рабочей зоне.
comments powered by HyperComments
Обустройство жилой зоны: особенности
В любом проекте квартиры студии большая площадь предусмотрена для жилой зоны. И это неудивительно. Здесь хозяева отдыхают, проводят время с гостями, занимаются творчеством. Поэтому она должна быть уютной, удобной и практичной.
В скромном по размерам помещении не уместна кровать. Лучше выбрать небольшой диван. Его легко превращают в полноценное и комфортное спальное место. Также можно установить шкаф, в котором спрячется кровать благодаря специальному спусковому механизму. Кроме этого, в нем можно хранить вещи.

В любом проекте квартиры студии большая площадь предусмотрена для жилой зоны

В маленьком помещении вместо кровати лучше поставить диван

При создании дизайна студии стоит продумывать все заранее
Если есть в квартире балкон, то на нем организовывается зона отдыха. Устанавливается два кресла и небольшой столик. Не надо применять громоздкие предметы, хорошо подойдут легкие, которые при необходимости переносятся. Во многих проектах размещаются в подобных интерьерах кресла-груши. Убрав их, можно получить свободную площадь, которая подойдет для решения других задач, творчества, отдыха.
Наличие в дизайне перегородки между зонами обязывает. Оформляя интерьер, потребуется правильно выбрать предметы мебели. Она должна быть многофункциональной и занимать минимум места. При этом хорошо вписываться в общую картину дизайна. Лучше устанавливать предметы одного цвета.
Цветовая гамма маленькой квартиры должна быть светлой. Они позволят визуально расширить пространство. Темные цвета украдут площадь и сделают помещение меньше, чем оно есть. Выгодно смотрятся зеркала, предметы отражающие свет.

Оформляя интерьер, потребуется правильно выбрать предметы мебели

Используйте светлые оттенки, они помогут визуально расширить площадь
Особенности оформления интерьера в небольшой квартире-студии 35 кв м
Зрительное увеличение помещения доступно с помощью проверенных способов, используемых дизайнерами. Обычно выбирают светлые тона, поскольку темные визуально делают комнату меньше. В хрущевках низкие потолки, что не позволяет использовать навесные конструкции, крупные осветительные приборы, массивные люстры
Большое внимание в миниатюрных жилищах уделяется следующим моментам:
- освещению;
- оформлению окон, стен, потолка;
- выбору мебели, штор;
- расцветке;
- стилю дизайна;
- зонированию пространства.

Такую квартиру можно превратить в многофункциональное и комфортабельное пространство с оригинальным оформлением.
Жители первых этажей с наличием балкона могу принять решение о расширении жилья с помощью пристроек. Это трудоемкая процедура, требующая разрешения от ЖЭКа и определенных финансовых затрат. Проще и дешевле провести основательный ремонт и разделить комнаты на зоны.
Правила оформления однокомнатной студии:
- Большие, широкие окна.
- Качественное освещение.
- Небольшие светильники и точечные лампочки предпочтительнее крупных люстр.
- Неприемлемы навесные конструкции, массивные детали.
- Присутствие черного цвет (при желании использовать) в минимальной дозе. Лучше его избегать.
- Жилье обустраивают по принципу минимализма, исключая нагромождение лишних предметов.
- Вместо габаритной мебели используют трансформеры, встроенный шкаф, барные стойки и т.д.
- Квартиру подразделяют на функциональные зоны: обеденная, гостевая, рабочая, библиотека, спальная, детская.
- Все детали интерьера в целом должны составлять гармоничное единство стиля.

За счет различных дизайнерских идей, правильного зонирования и расстановки мебели вы получите комфортабельное жильё.
Полезный совет! Современные квартиры (включая и эконом-класс) располагают просторной кухней, которую можно легко превратить в гостиную. Здесь иногда выделяют спальное место для одного из членов большой семьи. Наличие балкона увеличивает возможности жильцов. Его используют в качестве дополнительной зоны отдыха и для работы за ноутбуком.
Готовый проект дизайна должен соответствовать конкретной планировке. Учитываются: тип постройки дома, особенность квартиры, естественное освещение и другие факторы.
Правила планировки
Дизайнеры советуют оформлять дизайн квартиры в белом стиле, поскольку светлые тона делают помещение более свободным. Для этого можно использовать обои в теплых пастельных тонах, а чисто белые стены будут способствовать правильной расстановке световых акцентов в помещении. Необязательно использовать исключительно светлые оттенки при дизайне и планировке квартиры-студии, чтобы разнообразить интерьер такой квартиры, можно оформить в более ярких тонах кухонную и детскую зоны, а в случает отсутствия детской, можно сделать яркий акцент на зонах спальни и кухни. Такое цветовое решение является компромиссным, но главное – предусмотреть его сразу после планировки
При таком оформлении яркие зоны могут разнообразить ваш интерьер и привлечь к себе внимание гостей

При планировке интерьера даже самой просторной квартиры-студии учтите, что наиболее удобным и поэтому подходящим решение для такой квартиры будет интерьер в восточном стиле. Для такой планировки квартиры отлично подойдет размещенный в углу гостиной зоны диванчик, а роль кресел могут выполнять пуфики или специальные подушки-мешки. В спальне можно установить кровать, которая будет по внешнему виду напоминать татами.

При первоначальной планировке квартиры-студии необходимо избавиться от кладовых помещений, если они у вас имеются, поскольку так вы сможете еще больше расширить пространство своей квартиры-студии. Для удобного размещения вещей при планировке такой квартиры предусмотрите место для расположения шкафа-купе. Это очень вместительный и удобный предмет мебели, который, благодаря компактному устройству дверей, не открывающихся наружу, займет совсем немного места. Лучше расположить его в угловой части помещения. Если вы подберете для своей квартиры-студии шкаф-купе с зеркальными дверцами, то сможете визуально увеличить площадь вашей квартиры.

Для помещения с различными функциональными зонами лучше всего подойдут точечные встроенные светильники, которые лучше расположить вдоль стен
Важно учитывать, насколько каждая функциональная зона удалена от окна, чем ближе к окну расположена зона, тем ярче должны светить приборы. Если запланированная зона будет располагаться напротив окна, то нужно дополнительно осветить ее лампами дневного света

При планировании санузла можно вместо ванны установить душевую кабину, тем самым сделав это помещение более свободным. Так можно оставить место для раковины или удобного шкафчика для полотенец и других принадлежностей.

При планировании интерьера большой квартиры-студии старайтесь подбирать светлую мебель. Кроме того, она не должна быть массивной, чтобы не загружать пространство. Лучше отдавать предпочтение более компактной и функциональной мебели. Идеально подойдут модели-трансформеры.

Идеи интерьера
Прекрасный ярким сочетанием считается белый (основа) и красный цвета.
Если вы решили сделать полностью белую квартиру, то оставьте потолок необработанным то есть в его первоначальном виде (если у вас новостройка) и дополните интерьер яркими красками.
Также при абсолютно белом интерьере сделайте акцент на пол – он может быть деревянным (из натурального дерева или паркета).
Замечательным вариантом считается стиль лофт – сочетание белого цвета, черных вставок, дерева и кирпича – прекрасный интерьер для маленькой квартиры.
В квартирах с высоким потолком (от 3 метров) делают второй ярус для использования помещения по всем параметрам. Соединяют уровни небольшой лестницей. На «втором» этаж можно обустроить спальное или рабочее место.
Спальная комната – мебельные изделия
Изделия подбираются в зависимости от интерьерного направления и принципов зонирования, которыми руководствуются пользователи.
Современным направлениям свойственны прямые линии, отсутствие наружных элементов и искусственный состав.
Традиционные стили приветствуют округлости, фасадный декор и натуральные материалы.
Но от стилевой разницы перечень необходимых и возможных мебельных изделий для спальни не меняется:
- Кровать;
- Прикроватная банкетка;
- Прикроватная тумба;
- Комод;
- Шкаф-купе;
- Рабочий стол.
Любителям книг может понадобиться открытый стеллаж, который можно использовать в качестве зонирующей перегородки.
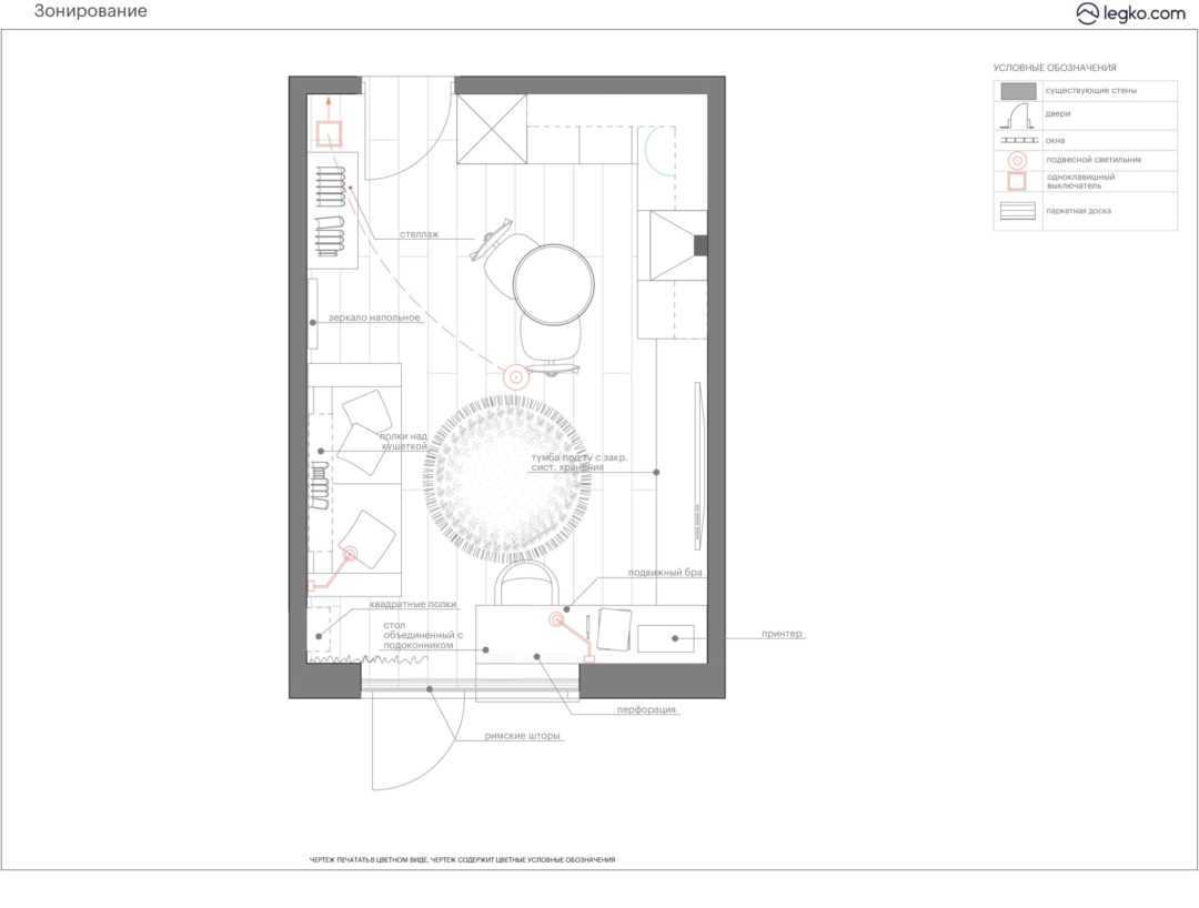
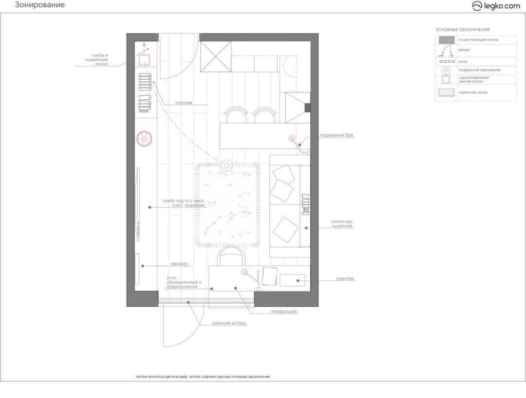
Этап 2. Зонирование
Зонирование оказалось самым простым этапом и я это во многом связываю с тем, что я уже работала с дизайнером над планированием пространства.
К моменту работы в Legko.com я решила вопрос с кухней и вынесла хранение вещей на лоджию. Оставалось разместить рабочий стол, спальное место и зону отдыха. Я амбициозно решила, что хочу всё это вместить на маленькой площади квартиры-студии.

Этот вариант мне не подошёл, потому что у меня уже была установлена кухня с барной стойкой и менять это я не планировала.
Изначально я хотела разместить стеллаж и телевизор у стены рядом с кухонной зоной, а раскладной диван напротив.
Ася подготовила два варианта зонирования и сразу предложила созвониться. За 30 минут я задала возникшие у меня вопросы, она прокомментировала все решения и в итоге я согласовала один из вариантов без каких-либо изменений.
Дизайнер убедила меня, что в таком случае, если кровать будет разобрана, то я по сути перегорожу всю комнату спальным местом и барной стойкой. Упс, кажется, я чуть не ошиблась. Она же предложила не делать стеллаж с полками вокруг телевизора, чтобы не загромоздить пространство.

Второй вариант зонирования, который я согласовала после того, как дизайнер прокомментировала мне несколько моментов, о которых у меня возникли вопросы.
Стиль и цветовые решения
Даже в 18 метровой квартире-студии применимы несколько стилевых решений, таких как:
Лофт – индустриальный стиль, которому свойственны грубые необработанные материалы, открытые коммуникации. Кирпичная кладка, не скрываемые трубы и системы вентиляции – вот, что характеризует лофт. Данный очень популярный, но дорогой стиль предполагает некий минимальный набор предметов интерьера. Основные цвета: серый, черный, белый, терракотовый.
Хай тек – современный стиль прямых линий и холодного глянцевого металла. Отличается простотой и четкостью. Цветовая гамма, как правило, холодная. Присутствуют такие цвета, как зеленый, синий, красный, фиолетовый, серый, белый.
Прованс – легкий непринужденный стиль, обои в цветочек – это про него. Характеризуется теплыми и спокойными тонами: бежевым, лавандовым, зеленым, розовым, коричневым.
Минимализм – название говорит само за себя. Минимум мебели и вещей. Больше воздуха и света. Оформить интерьер можно в любой гамме.
Эко стиль – трава, дерево, камень. Три основополагающих ключа данного стиля, но можно заменить материалы соответствующими фактурами. В этом направлении используют все природные цвета и сочетания.
Классический – деревянная мебель, натуральные дорогие ткани, возможно украшение лепниной. Роскошный и благородный. Цвета применяются пастельные, однотонные.
Эклектика – смешение стилей
Однако важно не перестараться, иначе пространство будет казаться подавленным и чрезмерно перегруженным. Такой интерьер – для довольно смелых людей, которым свойственна оригинальность
Цветовая гамма абсолютно любая
Цветовая гамма абсолютно любая.
Футуризм – стиль будущего, с необычной, но не менее притягательной геометрией. Холодная палитра сочетает в себе стиль и некое неземное присутствие. Не слишком распространен, его выбирают творческие люди с особым взглядом на мир.
Освещение
Зонирование при помощи света обычно применяется не отдельно, а совместно с любым другим способом
Правильное размещение источников искусственного освещения поможет осветить все важные зоны, акцентировать внимание на определённых элементах интерьера

В спальне обычно устанавливают небольшие точечные светильники, встроенные в навесной или подвесной потолок. Над зоной приёма гостей размещают центральную потолочную люстру. Рядом со столиком и диваном можно дополнительно установить напольные торшеры и настенные бра. Привлекательно смотрятся подсвеченные светодиодными лентами настенные картины или фотографии, полки. Увидеть это можно на фотографиях дизайна гостиной и спальни в одной комнате 20 кв. м.



















![Дизайн квартиры-студии 20 кв. м. [60+ фото] планировки, зонирование](http://5element-tlt.ru/wp-content/uploads/0/4/6/0462fb74724cfd3e0fcd13dd9dab0597.jpeg)










